08-756 83 50 [email protected]
Brf Bergark Logga

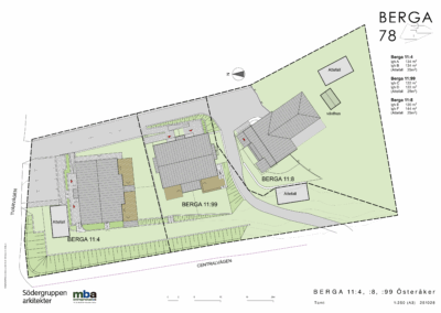
Här bygger vi sex stycken lägenheter i tre hus i storlek från 120–144 m2 samt 3 st Attefallslägenheter 25-50 m2 med mycket hög grundstandard. Ägandeformen kommer vara bostadsrätter men i en helt obelånad förening där månadsavgiften endast är de gemensamma kostnaderna såsom sopor, framtida underhåll mm. Husen ligger i närheten av våra tidigare projekt Kanalvillorna och Kanalbodarna utmed Åkers kanal där vi kan visa hur standarden på våra markarbeten mm ser ut när allt blir klart. Vi planerar att ha vår första visning antingen i början av december alternativt i januari. Inflyttning kommer att kunna ske från sommaren 2026

Läs mer om Österåkers kommun pågående detaljplan för Kanalterrassen som kommer gränsa till detta projekt – Kanalterrassen

Kontakta oss

Om du är intresserad av våra bostäder eller i övrigt vill komma i kontakt med oss är du välkommen att fylla i vårt kontaktformulär